Belzona Super Wrap II Extends Service Life of Water Injection Holding Tank

KHIA ID: 9498
Industry: Oil & Gas (OILG)
Application: SOS-Ships and Offshore Structures (SOS)
Substrate: Carbon steel
Customer Location: Gulf Of Mexico
Application Date: June 2024
Products: Belzona 1161 (Super UW-Metal),Belzona 1982 (SuperWrap II),Belzona SuperWrap II,Belzona 9111 (Cleaner Degreaser)

Problem: This water injection holding tank was suffering from internal corrosion causing thin wall throughout the entire vessel. The customer was looking for a life extension instead of a costly cut and replace.

Completed Application In Service

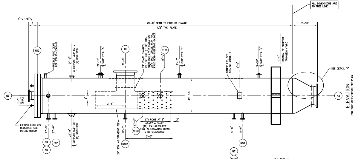
Water Injection Holding Tank Drawing

Application Situation
This customer was looking for a life extension to the vessel rather than a costly cut and replace. A cut and replace was going to be roughly $600,000. This customer uses Belzona Super Wrap II on a routine basis for addressing through wall holes and thin wall in process piping and vessels. They approached Belzona Houston / Belzona Offshore with the request and a Super Wrap II engineered design was developed and proposed to the client and after several meetings to discuss risks and benefits versus a cut and replace, the client choose to execute the Belzona Super Wrap II. The Belzona Super Wrap II application was carried out by the trained and experienced onboard crews which routinely utilize Belzona Super Wrap II. The client was able to execute this Belzona Super Wrap II life extension for under $300,000, for a cost savings of $300,000 along with reduced downtime compared to the cut and replace.
Application Method
Scaffolding was erected and abrasive blast was used for surface preparation.
Belzona Facts
The client was able to execute this Belzona Super Wrap II life extension for under $300,000, for a cost savings of $300,000 along with reduced downtime compared to the cut and replace.